06
文化の成長
学術

このプロジェクトは、略奪された物品を植物に置き換えることで博物館の概念を再発明し、交流、コミュニティ、教育を促進しながら、植民地主義の暴力的歴史に取り組みます。永続的、一時的、生産的、教育的なさまざまなタイプの植物文化が統合され、時間と共に進化し、文化的および歴史的文脈に対する意識を高めるダイナミックな空間を作り出します。持続可能なデザインを活用し、プロジェクトには都市農業のための温室の形での拡張が含まれています。既存の構造は植物学のワークショップや展示スペースに再利用され、博物館は教育的でインタラクティブな都市のランドマークへと変貌します。

博物館を再発明する方法について考えたとき、略奪された物品の所有と適用に関連する暴力の perpetuation から一歩引くことを望みました。 それゆえ、私たちは植物に目を向けました。 私たちは、博物館が果たす教育的で情報的な役割を維持するための道を提供すると信じています。これは不可欠だと考えています。このようにして、私たちは民族学博物館の概念を再考し、文化を祝福することを目指しています。それには私たちの文化も含まれます。 実際、知識の伝達を優先せずに過ちを繰り返すことを避けるにはどうすればよいのでしょうか? 植物と物品の比較が興味深いと感じました。どちらも植民地時代に「引き抜かれた」可能性があり、どちらもその文脈から取り除かれ、どちらも文化についての洞察を提供します。医療的、精神的、栄養的、またはその他の使用を通じて、植物は私たちや他の人々について多くのことを教えてくれます。輸入された植物と地元の植物の両方が私たちのサイトに見られます。 一部は植民地時代に輸入され、そのため、非自生の場所に存在することによってその時代を思い起こさせることがあります。 これらの植物は、他の文化から物品を所有することに関連する暴力について考えさせるものでした。 そのため、所有権、適用、再生産、そして本物性といった初期の学期の研究で強調されたこの暴力に関連する定義が変わりました。

したがって、私たちは物品ではなく植物を展示することに決め、博物館の定義を再主張し、交流、コミュニティ、教育を提唱します。 このようにして、私たちの代替博物館アイデアに適用される概念は、訪問者と植物との間の相互作用を目指し、保存から対話への移行を図ります。植物との積極的かつ手動の関わりを通じて、視覚だけにとどまらない相互作用が生まれます。 循環的な時間性の側面は、展示物の「凍結された」性質と対立します。 これにより、長期的または季節的に継続的な成長と進化が可能になります。 新しい民族学博物館では、同じ場所に植物に関連するさまざまな文化的側面を集めています。 私たちは、時間をかけて段階的に展開する計画を立てています。

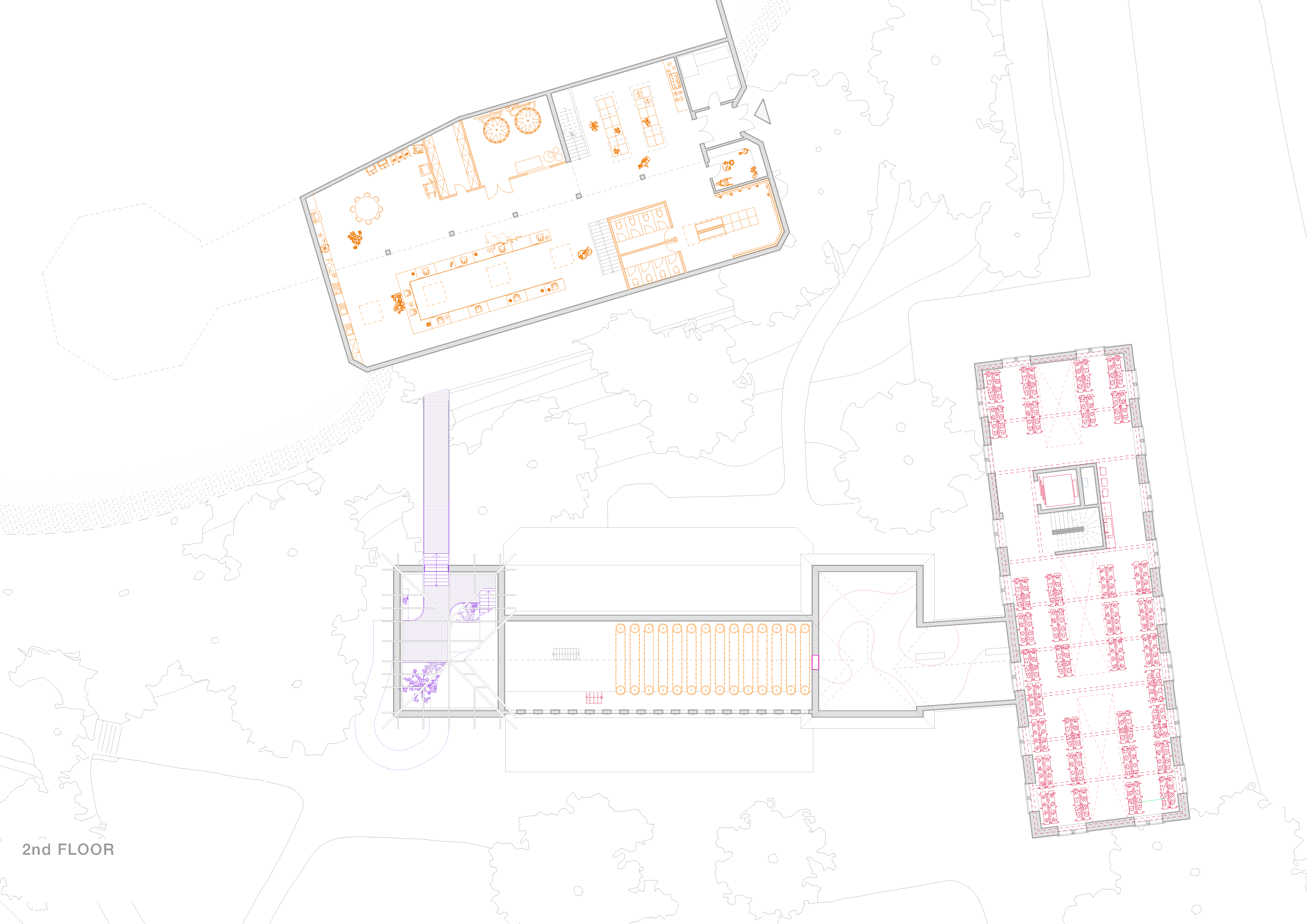
目指すプログラムには、永続的、一時的、生産的、教育的の4種類の文化が含まれています。 これらの異なる役割はそれぞれ特定の時間性、空間性、植物に関連しています。 たとえば、共通の糸として、グラウンドアイビーはプログラムのすべての機能を結びつける異なる形で現れます。 この植物は植民地時代に輸入されました。ここでは、その医療的および栄養的な価値が展開され、過去についての情報と意識を提供します。
• 都市農場として、生産的文化は既存の建物の上に追加された温室の形で3階建ての拡張として具現化されます。 この部分は、地元で生産された商品が消費される新しいレストランに関連しています。 地下に位置し、街と公園をつなげています。アイビーの葉と若芽は一年中使用できます。花は料理の風味付けに使われ、茶にすることもできます。
• 教育的文化は主に北の建物の既存のデポで行われます。 プログラムを変更し、植物とその過去についての意識を高め、知識を伝えるための子供向けの植物学ワークショップに変えます。 2つの庭も見つけられます: 1つは現在のガラス張りの図書館に、もう1つはその前の公園にあります。アイビーの暴力的な過去はコースとその取り扱いを通じて簡単に伝えることができます。
• 一時的な文化空間では、世界中のアーティストが植物に対するアプローチを展示することができます。カフェとレストランの間に位置し、訪問者は展示を通り抜けることが奨励されます(2つの建物をつなぐ)。ここではグラウンドアイビーが空間に自由に成長し、その歴史的な過去のメタファーとして地面を植民地化します。
• 最後に、東の翼では、永続的な文化が世界中の植物を展示します。
それらは一時的な文化のアーカイブとして根を下ろします。既存の建物の外皮だけを保持し、根は土壌に自由に成長できます。その上に、さまざまな歩道橋や階段があり、訪問者は成長する植物の間を散策できます。公共の場として、誰もが異なる植物の歴史について感覚を持つことができます。

具体化については、生産が行われる温室を詳細に設計しました。 既存の構造への影響を最小限に抑えるために、建物の壁にシンプルな金属構造を配置しています。他の場所で切断されて再利用されたコンクリート板がその後構造に固定されています。コンクリートの質量は温室の熱的慣性において利点を提供します。その後、光を提供するためにカーテンウォールが構造を包みます。これは木とガラスで作られています。木材は、解体され再製造された以前の博物館の屋根梁から来ており、ガラスは隣接する塔の1つから来ており、それが改装されました。 現在、博物館は換気システムによって調節されています。したがって、チューブも再利用するのが簡単で、新しい温室に適応させることができます。 私たちの植物は時折LEDストリップで照らす必要があり、これにより温室と博物館は公園と都市の新しい旗艦となります。

この民族学博物館の再考を通じて、さまざまな訪問者、通行人、地元住民、近くの学校の生徒にこれらの植物に内在する可能性のある暴力的歴史について感覚を持ってもらうことを期待しています。

Marina Täubeとのコラボレーション。
プロジェクトは、ETHZのStudio Atavismの一環として実施されました。

レンダリングブレンダーアーキテクチャミュージアム変換は、紫色のライトチューリッヒを光線します
都市景観のイラストは、スケッチアーキテクチャパークの建物のラインドラウニングを描いています
ライン図面スケッチイラスト都市の視点マップ都市部の表現
状況マップ周辺の線画
テキストダイアグラムプロジェクトアーキテクチャエボリューションイラストアニメーションGIF
オブジェクトブレンダーアニメーションGIFで成長する植物
ライン描画オブジェクトBenin Animation/luca_allemann_06_Growing Cultures_images 06 07 Line DrawingオブジェクトBenin Animation
さまざまな建築介入プロジェクトのイラスト
axonometric Drawing Building Architecture Lively People Illustration CAD
Zoom Axonometric Drawing Building Architecture Lively People Illustration CAD1
Zoom Axonometric Drawing Building Architecture Lively People Illustration CAD2
ZOOM Axonometric Drawing Building Architecture Lively People Illustration CAD4
ZOOM Axonometric Drawing Building Architecture Lively People Illustration CAD6
Axonometric Drawing Architectural Intervention Project Illustration CAD Illustrator
Axonometric Drawing Architectural Intervention Project Illustration CAD Illustrator1
Axonometric Drawing Architectural Intervention Project Illustration CAD Illustrator2
Axonometric Drawing Architectural Intervention Project Illustration CAD Illustrator3
axonometry Architectural Architectural Drawingディテールファサード構造図CADを爆発します
axonometry Architectural Architectural Drawingディテールファサード構造図CADを爆発します
axonometry Architectural Architectural Drawingディテールファサード構造図CAD1を爆発します
axonometry Architectural Architectural Drawingディテールファサード構造図CAD2を爆発します
axonometry Architectural Architectural Drawingディテールファサード構造図CAD3を爆発します
レンダリング構造構築コンクリートメタルアーキテクチャイラストは現実的です
新しい再利用構造をレンダリングするコンクリートメタルアーキテクチャの改修既存のイラスト現実的
軸づけの図面の既存の建物の改修アーキテクチャプロジェクトの垂直拡張
既存の建物の改修建築プロジェクトに関する軸測定図CAD垂直拡張
マップの状況の図は、CAD植生のトップビューを描いています
描画トップビューアーキテクチャリノベーションの既存の建物CADを計画します
描画トップビューアーキテクチャリノベーションの既存の建物CAD1を計画します
描画トップビューアーキテクチャリノベーションの既存の建物CAD2を計画します
描画トップビューアーキテクチャリノベーションの既存の建物CAD3を計画します
描画トップビューアーキテクチャリノベーションの既存の建物CAD4を計画します
セクション描画2Dビューアーキテクチャの改修既存の建物CAD
セクション描画2Dビューアーキテクチャの改修既存の建物CAD1
既存の建物の改修プロジェクトに関する建築モデルペーパー垂直拡張
既存の建物の改修プロジェクトに関する建築モデルペーパー垂直拡張
既存の建物の改修プロジェクトに関する建築モデルペーパー垂直拡張
既存の建物の改修プロジェクトに関する建築モデルペーパー垂直拡張
既存の建物の改修プロジェクトに関する建築モデルペーパー垂直拡張